武蔵小山駅徒歩6分の駅近♪新築戸建3LDK車庫付!建物100㎡超!LDK20帖!第3種高度♪フラット35適用可♪買物便・交通便良好♪
| 価格 | 成約済み |
|---|---|
| 所在地 | 東京都品川区小山4丁目 |
| 間取 | 3LDK |
| 最寄駅 | 東急目黒線「武蔵小山」駅 (徒歩6分) |
武蔵小山新築戸建6180万円!駅徒歩6分!人気の品川アドレスです♪
こんにちは! 武蔵小山の不動産屋アルゾホームです!
本日は武蔵小山の駅近新築戸建物件をご紹介いたします♪
場所は人気の品川区小山4丁目、武蔵小山駅徒歩6分の好立地です!
武蔵小山が誇る「武蔵小山パルム商店街」からも非常に近く、こちらはなんと徒歩3分です♪
買物便は言わずもがな非常に良好ですので、気を付けるのは無駄使いだけですね♪
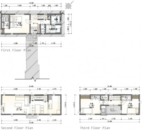
間取りは3LDKで車庫スペースがございます。☟☟☟☟
※クリックして拡大してみてください♪

玄関からすぐに浴室などが見えないつくりなので、住み始めてから、家の顔としての玄関回りの装飾が楽しめそうですよね♪
第3種高度の特性をうまく活かしたかなりのゆったり設計です♪
各部屋も非常に広くとれていて、ウォークインもあって収納もたっぷり!!
各室にはカウンターを設置した使い勝手の良い設計プランですよ♪
加えてなんとLDKは約20帖!!奥様に人気の対面キッチンです♪
☟☟☟こちらは外観イメージパースです☟☟☟

外観はシンプルモダンなスクエアタイプです。主張しないデザインながら迫力がありますね(^ー^)
詳細はお問合せください♪お待ちしてまーす^0^/
物件名: 品川区小山4丁目新築戸建6180
| 価格 | 成約済み |
|---|---|
| 所在地 | 東京都品川区小山4丁目 |
| 間取 | 3LDK |
| 最寄駅 | 東急目黒線「武蔵小山」駅 (徒歩6分) |
| 最寄駅 | 東急目黒線「武蔵小山」駅 |
|---|---|
| 最寄駅1から徒歩 | 徒歩6分 |
| 物件名 | 品川区小山4丁目新築戸建6180 |
|---|---|
| 間取り | 3LDK |
| 主要採光面 | 南東 |
| 建物構造 | 木造 |
| 駐車場 | あり |
| 建物面積 | 101.33㎡ |
| 土地面積 | 76.54㎡ |
| 築年月(築年数) | 平成25年3月完成予定 |
| 地目 | 宅地 |
|---|---|
| 建ぺい率 | 60 |
| 容積率 | 160 |
| 都市計画 | 市街化区域 |
| 用途地域 | 第一種住居地域 |
| 土地権利 | 所有権 |
| 現況 | 更地 |
| 引渡し | 相談 |
| 取引態様 | 仲介 |
| 設備・条件 | フラット35適用可! |
|---|---|
| 物件管理番号 | 4487 |













