目黒区屈指の好住環境!林試の森公園至近の武蔵小山新築戸建!
| 価格 | 成約済み |
|---|---|
| 所在地 | 東京都目黒区下目黒4丁目 |
| 間取 | 3LDK |
| 最寄駅 | 東急目黒線「不動前」駅 (徒歩14分) |
武蔵小山新築戸建!3LDK車庫付!林試の森公園至近の落ち着いた住環境です♪
林試の森公園が大好きで、駅からそんなに近くなくても落ち着いた住環境に住みたい!!!
そんな方にぴったりの物件をご紹介します (^_^)v
なんと!今回の物件は林試の森公園までの距離、徒歩2分です!!!
目黒区屈指の規模を誇る林試の森公園は
付近に住むご家族のコミュニケーションプレイス♪
マイナスイオンたっぷりでとっても気持ちいいですよ~ 😊😉
落ち着いた住環境と昔からの閑静な住宅が立ち並ぶ目黒区アドレス。
有名人・著名人が好んで住まうことでも有名なエリアです。
今回ご紹介するのは6380万円から新築戸建。
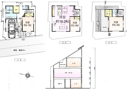
いくつか間取りをご紹介します。
まずはこちら!!☟↓↓↓
プライバシーが守られやすいので芸能人の方なんかには非常に人気があります。
今回の配置図を見て頂くとお分かりのように、こちら旗竿地といいつつも、
建物側はしっかり道路に対する間口がとれていて、なおかつ南西側から車をいれることができるのでかなり良い条件だと思います^^
自転車を置いたりガーデニングするスペースをしっかり確保しつつ、3LDKをしっかり確保している点でもとってもオススメ!!
建物面積 約90㎡ございます♪
続いて他の区画の間取りもご紹介☟☟↓↓↓
正方形に近い形で間取りがとれてとっても使い易い間取りになっています。
大きなルーフバルコニーもあり、林試の森公園エリアにはとってもマッチした気持ちの良いプランですね♪
現地はこのようにすでに更地です。☟☟↓↓↓
間取りや仕様の変更などはご自身で決めて頂けますのでこの落ち着いた住環境でどのような暮らしをしたいかじっくりとお考えいただきながらマイホームつくりを楽しんでいただける物件です♪
晴れの日のここをぜひご案内させてください♪
他の区画も参考プランご用意してますのでぜひぜひお問合せください^^
物件名: 目黒区下目黒4丁目新築戸建6,380万円~
| 価格 | 成約済み |
|---|---|
| 所在地 | 東京都目黒区下目黒4丁目 |
| 間取 | 3LDK |
| 最寄駅 | 東急目黒線「不動前」駅 (徒歩14分) |
| 最寄駅 | 東急目黒線「不動前」駅 |
|---|---|
| 最寄駅1から徒歩 | 徒歩14分 |
| 最寄駅2 | JR山手線「目黒」駅 |
| 最寄駅1から徒歩 | 徒歩15分 |
| 交通その他 | 都営三田線・東急目黒線「目黒駅」 徒歩15分 |
| 物件名 | 目黒区下目黒4丁目新築戸建6,380万円~ |
|---|---|
| 間取り | 3LDK |
| 建物構造 | 木造 |
| 駐車場 | あり |
| 建物面積 | 89.1㎡~ |
| 土地面積 | 70.1㎡~77.69㎡ |
| 接道状況 | 南西約3.5m/北東約2.1 |
| 築年月(築年数) | 平成26年4月予定 |
| 地目 | 宅地 |
|---|---|
| 建ぺい率 | 60 |
| 容積率 | 150 |
| 都市計画 | 市街化区域 |
| 用途地域 | 第二種低層住居専用地域 |
| 土地権利 | 所有権 |
| 現況 | 更地 |
| 引渡し | 相談 |
| 取引態様 | 仲介 |
| 備考 | 各区画プランあります。 |
|---|---|
| 物件管理番号 | 4912 |
















