駅徒歩7分!スーパー徒歩4分!パルム商店街徒歩7分!4LDK車庫付6580万円!LDK18帖超え!
| 価格 | 成約済み |
|---|---|
| 所在地 | 東京都品川区小山2丁目 |
| 間取 | 4LDK |
| 最寄駅 | 東急目黒線「武蔵小山」駅 (徒歩7分) |
武蔵小山新築戸建!!徒歩7分!!4LDK車庫付で6580万円より!!フリープランです!
武蔵小山の駅近、人気の小山2丁目で新築戸建物件登場!
奥様に人気の品川アドレス。
非常に閑静でありながら利便性抜群の、武蔵小山でも人気のエリアです♪
プランは4LDKに車庫が付く贅沢プラン♪しかもLDKは18帖超えです!!広いです!!
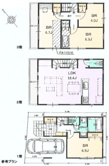
こちらは4LDKの参考プランです。
LDKは18.4帖!! かなりの広さがあります^^
各居室をうまく広くとった間取りですね。
大きなワイドバルコニーで洗濯物もたっぷり干せそうです。
もちろんゆったりめの3LDKでもいいんじゃないでしょうか??^^
こちらは土地・建物込 6580万円です!
ん~これはこれはかなり魅力的ですね。
以下は同社施工例です!
色んなテイストがありますので、想像力をかきたてて頂いて、
うきうき気分のまま物件を見に行ってください^^
まだ間取りは変更可能ですので、お好きなフリープランで楽しくマイホームをお造りいただけますよ^^
では、最後に近隣環境のご紹介です♪
急行も停まる武蔵小山駅、元気なパルム商店街、都民の遊び場『林試の森公園』、心と身体のオアシス『武蔵小山温泉』、郵便局に薬局、スーパーライフにコンビニと生活環境は整っています^^
このように、人気の理由は一目瞭然ですよね^^
武蔵小山の品川アドレスは人気殺到しますので、お早目のお問合せをお待ちしています^^
物件名: 品川区小山2丁目新築戸建6580万円より
| 価格 | 成約済み |
|---|---|
| 所在地 | 東京都品川区小山2丁目 |
| 間取 | 4LDK |
| 最寄駅 | 東急目黒線「武蔵小山」駅 (徒歩7分) |
| 最寄駅 | 東急目黒線「武蔵小山」駅 |
|---|---|
| 最寄駅1から徒歩 | 徒歩7分 |
| 物件名 | 品川区小山2丁目新築戸建6580万円より |
|---|---|
| 間取り | 4LDK |
| 駐車場 | あり |
| 土地権利 | 所有権 |
|---|---|
| 引渡し | 相談 |
| 取引態様 | 仲介 |
| 物件管理番号 | 2203 |
|---|
























