武蔵小山駅徒歩7分!林試の森公園至近の好環境!4730万円売地!眺望良好!角地!
| 価格 | 成約済み |
|---|---|
| 所在地 | 東京都品川区小山台1丁目 |
| 間取 | 58.25㎡お |
| 最寄駅 | 東急目黒線「武蔵小山」駅 (徒歩7分) |
人気の武蔵小山駅徒歩7分!小山台1丁目売地!言わずとしれた林試の森公園至近の好環境です♪ピンポイントでお探しの方も必見の物件です!
ついに出ました!!
都会のオアシス、『林試の森公園』 至近の希少地、小山台1丁目売地のご紹介♪
しかも、うれしいうれしい角地の売地です♪
また、目黒線の中でも人気の高い 『武蔵小山』駅から徒歩7分という、
戸建環境としては申し分のない好環境ですよ~!!!
建築条件はございませんので、お好きなハウスメーカーや工務店でお建ていただけます♪
とはいえ、参考プランの1つもないと、なかなかご判断も難しいと思います!
そこで、2パターンほど参考プランのをご用意しました!
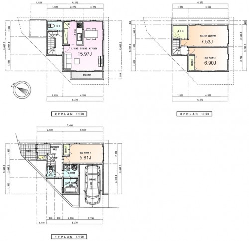
【参考プランその1】
建物面積
97.85㎡(車庫含む)
使い易さにこだわった設計間取です。
特に、
リビングダイニングキッチンは
食事スペースとくつろぎスペースをうまく分け、同空間でありながらゆったりした動線をしっかり確保しつつも、家族のコミュニケーションを大切に考えた間取りですね♪
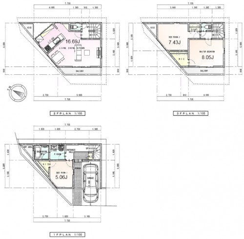
【参考プランその2】
建物面積
101.15㎡(車庫含む)
こちらは土地の形状を最大限利用し、少しでもお部屋を広く広くとれるように設計された間取りです。
こちらのリビングダイニングキッチンは対面式のキッチンからの空間の広がりを感じられるようになっています。
同じ土地でも少し視点を変えるだけでこんなに違った間取りがとれるんですね!
これだから家づくりっておもしろい 😉
現状は古家が建ってます。引き渡しはもちろん更地渡しですのでご心配なく^^
3階の西側からの眺望がこちら。
バルコニーからこんな景色が見えると
心が落ち着きますねぇ。。。
環境の良さがとってもわかる1枚です^^
都心でこんな環境に家を建てれたらいいですよね。😊
武蔵小山駅 徒歩7分!不動前駅も 徒歩12分です。
気になる方、是非お気軽にご相談くださいね^^
お待ちしております♪
物件名: 小山台1丁目売地4730
| 価格 | 成約済み |
|---|---|
| 所在地 | 東京都品川区小山台1丁目 |
| 間取 | 58.25㎡お |
| 最寄駅 | 東急目黒線「武蔵小山」駅 (徒歩7分) |
| 最寄駅 | 東急目黒線「武蔵小山」駅 |
|---|---|
| 最寄駅1から徒歩 | 徒歩7分 |
| 交通その他 | 東急目黒線『不動前』駅 徒歩12分 |
| 物件名 | 小山台1丁目売地4730 |
|---|---|
| 土地面積 | 58.25㎡お |
| 総区画数 | 2区画 |
| 接道状況 | 北側約4m私道、西側約4m私道 |
| 私道負担 | 私道持分あり |
| 地目 | 宅地 |
|---|---|
| 建ぺい率 | 60 |
| 容積率 | 200 |
| 都市計画 | 市街化区域 |
| 用途地域 | 第一種中高層住居専用地域 |
| 土地権利 | 所有権 |
| 現況 | 古家あり(更地渡し) |
| 引渡し | 相談 |
| 取引態様 | 仲介 |
| 物件管理番号 | 265 |
|---|





















