西小山駅徒歩4分☆☆☆えっ?3880万円☆☆中古戸建☆☆もちろん所有権です♪♪
| 価格 | 成約済み |
|---|---|
| 所在地 | 東京都目黒区洗足1丁目 |
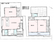
| 間取 | 3LDK |
| 最寄駅 | 東急目黒線「西小山駅」 (徒歩4分) |
西小山駅徒歩4分☆☆☆えっ?3880万円☆☆中古戸建☆☆もちろん所有権です♪♪
夢・幻の如く。。。。。
ございましたでしょうか? いままでに、西小山駅至近の
人気の洗足1丁目エリアに、3880万円?♪
当然に、土地面積83.72㎡の所有権でございます。
しかも、内外装・耐震補強も加えたフルリノベーション済みですので、
非の打ちどころがございません♪♪♪
近隣には、公園もあり、西小山駅前 洗足特有のおしゃれなお店がたくさんございます♪♪
極めつけに、フルリノベーション済みでございます♪♪
内外装ほぼ新築同様ですので、
リフォーム代は一切かかりません♪♪
恐らくあっという間に、売れてしまう予感満点な物件でございますよ☆☆
お早目に、お問合せ下さいませ♪♪♪
物件名: 西小山中古戸建3880万円
| 価格 | 成約済み |
|---|---|
| 所在地 | 東京都目黒区洗足1丁目 |
| 間取 | 3LDK |
| 最寄駅 | 東急目黒線「西小山駅」 (徒歩4分) |
| 最寄駅 | 東急目黒線「西小山駅」 |
|---|---|
| 最寄駅1から徒歩 | 徒歩4分 |
| 物件名 | 西小山中古戸建3880万円 |
|---|---|
| 間取り | 3LDK |
| 主要採光面 | 南東 |
| 建物構造 | 木造 |
| 建物面積 | 77.02㎡ |
| 土地面積 | 83.72㎡ |
| 用途地域 | 第一種低層住居専用地域 |
|---|---|
| 土地権利 | 所有権 |
| 現況 | 空 |
| 引渡し | フルリフォーム済み |
| 取引態様 | 媒介 |
| 物件管理番号 | 2665 |
|---|






















