価格改訂!!利便性抜群の三軒茶屋駅 徒歩8分の好立地!3LDK新築戸建が4680万円から登場!未公開早い者勝ちです!
| 価格 | 成約済み |
|---|---|
| 所在地 | 東京都世田谷区太子堂5丁目 |
| 間取 | 3LDK |
| 最寄駅 | 東急田園都市線「三軒茶屋」駅 (徒歩8分) |
お手頃価格に改訂致しました♪人気の三軒茶屋駅まで徒歩8分!新築戸建3LDK以上!4680万円~!未公開!!!!
世田谷区にお住まいの、また世田谷区で売買物件のをお探し中のみなさま、
武蔵小山の不動産屋 「アルゾホーム」でございます!
本日は、世田谷区太子堂5丁目、ピンポイントでご紹介いたします!
東急田園都市線 『三軒茶屋』駅 徒歩8分!
3LDKの新築戸建の登場です☆
三軒茶屋といえば、下町の温もりが今も残り、新しい街並みと昔から変わらない商店街が共存する場所。生活便が良く、老いにも若きにも根強い人気を誇り、また、劇団も多いせいか有名人も好んで住む場所として有名です。
ちなみに上の写真は1952年から続く中央劇場です。なんかレトロでいいですよね^^
そんな三軒茶屋で駅近に新築戸建が持てる?しかも3LDKで?
お探しの方ならこの苦労おわかりでしょうか・・・。
なかなかこれという物件は出ませんよね。
ところが、今回、自信を持って紹介できるのが今回の未公開物件なんです!
この物件の良さは、駅徒歩8分という場所でありながら静かで暮らしやすい場所。
仕様は前回施工例でお楽しみください!
次の施工例をつくるのはあなたかもしれませんよ~☆
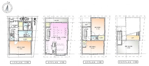
そして、15帖を超える広々LDK!もちろん奥様に人気の対面キッチンです!
居室は全て6帖以上の広さを確保し、かつ、ロフトまでも設置可能です☆
さらに、なんと憧れのルーフバルコニーまで!
夏はルーフバルコニーでビアガーデンで友達を呼んでパーティーなんてどうでしょうか♪
もう高い飲み代を払ってお店で毎日ご主人さんが飲まれることもなくなるかもしれませんよ♪
昼はお子様をプールに入れたり、春や秋には奥様がガーデニングを楽しんだりと
家族の趣味が膨らむこと間違いなしですね^^
物件の詳しい情報は是非お問合せください。
お問合せお待ちしております。
(担当:ミヤナガ)
物件名: 世田谷区太子堂5丁目新築戸建
| 価格 | 成約済み |
|---|---|
| 所在地 | 東京都世田谷区太子堂5丁目 |
| 間取 | 3LDK |
| 最寄駅 | 東急田園都市線「三軒茶屋」駅 (徒歩8分) |
| 最寄駅 | 東急田園都市線「三軒茶屋」駅 |
|---|---|
| 最寄駅1から徒歩 | 徒歩8分 |
| 物件名 | 世田谷区太子堂5丁目新築戸建 |
|---|---|
| 間取り | 3LDK |
| 主要採光面 | 南 |
| 建物構造 | 木造 |
| 接道状況 | 北側私道 |
| 築年月(築年数) | 平成24年10月末 予定 |
| 建ぺい率 | 60,80 |
|---|---|
| 容積率 | 200,300 |
| 土地権利 | 所有権 |
| 引渡し | 相談 |
| 物件管理番号 | 268 |
|---|
























