武蔵小山駅徒歩10分!西小山駅徒歩8分!5480万円新築戸建登場!パルム商店街まで徒歩5分で買物便良好!カースペースあり!第3種高度のためルーフバルコニーも設置可能です!!
| 価格 | 成約済み |
|---|---|
| 所在地 | 東京都品川区荏原5丁目 |
| 間取 | 3LDK |
| 最寄駅 | 東急目黒線「武蔵小山」駅 (徒歩10分) |
未公開最前線!教育環境良好の荏原5丁目に5480万円の新築戸建登場!3LDK+ロフト+ルーフバルコニー+カースペース!
今日は冷たい雨が降ってますね。春の訪れはいつなんでしょうか。。
ところがところが、本日季節の変わりめより一足早く春を感じる物件が出てきました♪
荏原5丁目の武蔵小山パルム商店街すぐ近くの人気エリアに
未公開新築戸建物件が本日出て参りました♪
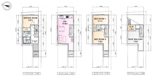
まずはこちらの間取りをご覧いただいて、
夢のマイホームへのイメージを膨らませていただければと思います♪♪
3LDK+ロフトスペース、さらに憧れのルーフバルコニー!!
もちろんカースペースもご用意しております☆
第3種高度地区ですので、斜線もなく3階建てがズドンっと建築可能でございます♪
こちらは前回施工例です↓↓↓↓↓↓
着工前になりますので、
実際の写真はまだご紹介できないのが残念ですが、
左は前回施工の一例になります。
まだ、建築プランの変更も仕様も今ならまだ
お客様の自由に変更可能です♪♪
現地の場所は抜群です。
小山小学校近くの閑静な住宅街はお子様を育てるにはもってこいの環境です♪
◎武蔵小山駅 徒歩10分
都内でもその活気の良さで大人気のパルム商店街へは
駅に行くよりも近く 徒歩5分です!
言い方を変えてみれば、パルム商店街内を通れば雨の日でも傘が必要なのは実質5分ですよ^^
◎西小山駅へも徒歩8分ですので、どちらを選ぶのかは自由です!!
まずは実際に現地をご案内できればと思いますので、
ものは試しです♪お気軽にお問合せを下さいませ^^
物件名: 荏原5丁目新築戸建
| 価格 | 成約済み |
|---|---|
| 所在地 | 東京都品川区荏原5丁目 |
| 間取 | 3LDK |
| 最寄駅 | 東急目黒線「武蔵小山」駅 (徒歩10分) |
| 最寄駅 | 東急目黒線「武蔵小山」駅 |
|---|---|
| 最寄駅1から徒歩 | 徒歩10分 |
| 最寄駅2 | 東急目黒線「西小山」駅 |
| 最寄駅1から徒歩 | 徒歩8分 |
| 交通その他 | 2駅利用可能です。 |
| 物件名 | 荏原5丁目新築戸建 |
|---|---|
| 間取り | 3LDK |
| 主要採光面 | 南東 |
| 建物構造 | 木造 |
| 駐車場 | カースペースあり |
| 建物面積 | 81.13 |
| 土地面積 | 57.01 |
| 築年月(築年数) | 平成24年7月予定 |
| 地目 | 宅地 |
|---|---|
| 建ぺい率 | 60 |
| 容積率 | 300 |
| 土地権利 | 所有権 |
| 現況 | 計画中 |
| 引渡し | 相談 |
| 取引態様 | 仲介 |
| 物件管理番号 | 365 |
|---|




















