人気の戸越銀座商店街至近!3路線3駅利用可能な品川区豊町1丁目で新築戸建5980万円から!車庫付3LDK!陽当り良好!
| 価格 | 成約済み |
|---|---|
| 所在地 | 東京都品川区豊町1丁目 |
| 間取 | 3LDK |
| 最寄駅 | JR山手線「大崎」駅 (徒歩9分) |
品川区豊町1丁目!車庫付き広々3LDK!5,980万円より2区画登場!LDK約21帖!南側ひな壇につき陽当り良好です!3路線3駅利用可能です!!
直線距離にして日本最長を誇る戸越銀座商店街至近!!
直線距離にしてわずか徒歩1分の好立地に新築戸建が登場です!!
↑↑これぞ地元の元気の源!!戸越銀座商店街です!!!↑↑
この商店街さえあればお買物に困ることはありません!!!
建物の方は、いつもとーってもセンスの良い家を創る施工会社さんなので
外観からしてとってもかっこいいですね☆すでに!!
イメージパースを見てもらうとわかる通り、南側がひな壇になっているの地形なので
通常の平地よりも南側の陽当りという面でかなりポイントの高い物件といえます!!
これは武蔵小山の不動産屋としては絶対にほっとけない物件だ!
ということで今回ご紹介させていただいてます!
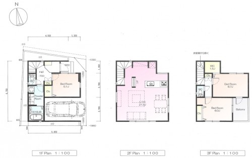
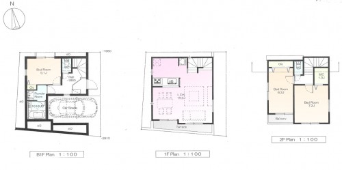
<<<<<< 間取り >>>>>>>
<A区画>
<B区画>
ABどち地形がとっても綺麗なので、正方形の間取りがとれます。
LDKはどちらも約20帖とかなり広々しておりますよ♪
そして、何度も言いますが南側はひな壇の為陽当りは良好です♪
◆全窓ペアガラス、食洗機、浴室換気乾燥機、LDKにTES床暖房と設備充実☆
◆ジャパンホームシールドによる地盤保証付き
◆JIOわが家の保険加入
是非、現地ご案内させていただければと思います^^
お会いできるのを楽しみにしてます♪
物件名: 豊町1丁目新築戸建5,980万円より
| 価格 | 成約済み |
|---|---|
| 所在地 | 東京都品川区豊町1丁目 |
| 間取 | 3LDK |
| 最寄駅 | JR山手線「大崎」駅 (徒歩9分) |
| 最寄駅 | JR山手線「大崎」駅 |
|---|---|
| 最寄駅1から徒歩 | 徒歩9分 |
| 最寄駅2 | 東急池上線「戸越銀座」駅 |
| 最寄駅1から徒歩 | 徒歩11分 |
| 最寄駅3 | 都営浅草線「戸越」駅 |
| 最寄駅3から徒歩 | 徒歩11分 |
| 交通その他 | 大崎駅に埼京線乗り入れで3駅4路線利用可能 |
| 物件名 | 豊町1丁目新築戸建5,980万円より |
|---|---|
| 間取り | 3LDK |
| 主要採光面 | 南東 |
| 建物構造 | RC造木造混合 |
| 駐車場 | 1台あり |
| 建物面積 | 99.75㎡~ |
| 土地面積 | 57.65㎡~ |
| 総区画数 | 2区画 |
| 接道状況 | 東側公道約4.1m、北側私道約3.2m |
| 築年月(築年数) | 平成25年3月築予定 |
| 地目 | 宅地 |
|---|---|
| 建ぺい率 | 60 |
| 容積率 | 200 |
| 都市計画 | 市街化区域 |
| 用途地域 | 第一種住居地域 |
| 土地権利 | 所有権 |
| 現況 | 更地 |
| 引渡し | 相談 |
| 取引態様 | 仲介 |
| 物件管理番号 | 854 |
|---|
















