㊙未公開!スーパー徒歩2分!パルム商店街徒歩4分!3LDK車庫付5000万円台!!
| 価格 | 成約済み |
|---|---|
| 所在地 | 東京都品川区小山2丁目 |
| 間取 | 3LDK |
| 最寄駅 | 東急目黒線「武蔵小山」駅 (徒歩7分) |
㊙未公開!スーパー徒歩2分!パルム商店街徒歩4分!3LDK車庫付5000万円台!!
武蔵小山の駅近、人気の小山2丁目で新築戸建物件登場!
年に一度か二度あるかの武蔵小山駅徒歩10分圏内の
新築戸建のご紹介になりますよ!(^^)!
必見です♪♪♪
非常に閑静でありながら利便性抜群の、武蔵小山でも人気のエリアです♪
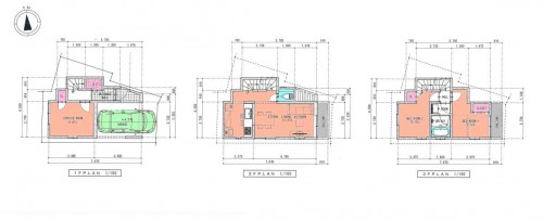
プランは3LDKに車庫が付く贅沢プラン♪!!
こちらは3LDKの参考プランです。↓↓↓↓↓↓
土地のポテンシャルを最大限に生かした
使い勝手の良い間取りですね。
以下は同社施工例です!
色んなテイストがありますので、想像力をかきたてて頂いて、
うきうき気分のまま物件を見に行ってください^^
まだ間取りは変更可能ですので、お好きなフリープランでマイホームをお造りいただけますよ^^
第三種高度という土地のポテンシャルを活かして、ルーフバルコニーも設置可能です♪


もしくはロフトなどを作って、天井高で解放感を楽しむのもオススメですよ♪
急行も停まる武蔵小山駅、元気なパルム商店街、都民の遊び場『林試の森公園』、心と身体のオアシス『武蔵小山温泉』、郵便局に薬局、スーパーライフにコンビニと生活環境は整っています^^
恐らく、人気が殺到しますので、お早目のお問合せをお待ちしています^^
物件名:
| 価格 | 成約済み |
|---|---|
| 所在地 | 東京都品川区小山2丁目 |
| 間取 | 3LDK |
| 最寄駅 | 東急目黒線「武蔵小山」駅 (徒歩7分) |
| 最寄駅 | 東急目黒線「武蔵小山」駅 |
|---|---|
| 最寄駅1から徒歩 | 徒歩7分 |
| 間取り | 3LDK |
|---|---|
| 主要採光面 | 東 |
| 建物構造 | 木造 |
| 駐車場 | 有り |
| 建物面積 | 79.17㎡ |
| 土地面積 | 44.00㎡ |
| 総区画数 | 1区画 |
| 接道状況 | 東側公道約3.9m、西側私道約2m |
| 私道負担 | 有 |
| 地目 | 宅地 |
|---|---|
| 建ぺい率 | 60 |
| 容積率 | 300 |
| 都市計画 | 市街化区域 |
| 用途地域 | 準工業地域 |
| 土地権利 | 所有権 |
| 現況 | 更地 |
| 引渡し | 相談 |
| 取引態様 | 仲介 |




























