東急目黒線「洗足駅」徒歩4分!2線3駅利用可能♪♪5880万円~の条件付売地★★
| 価格 | 成約済み |
|---|---|
| 所在地 | 東京都大田区北千束2丁目 |
| 間取 | 3LDK |
| 最寄駅 | 東急大井町線「北千束」駅 (徒歩3分) |
東急目黒線「洗足駅」徒歩4分!2線3駅利用可能♪♪5880万円~の条件付売地★★
大田区北千束2丁目エリアにて、車庫付3LDK80㎡超え、2区画の条件付売地の
ご紹介になります♪♪
アドレスこそ、「大田区」になるものの、
東急大井町線「北千束」駅 徒歩3分
東急目黒線「洗足」駅 徒歩4分
東急目黒線・大井町線「大岡山」駅 徒歩10分
洗足池公園 徒歩8分
北千束東急ストア 徒歩4分
大岡山東急ストア 徒歩10分
昭和女子医大 徒歩13分
通勤・通学便の良さはもちろんの事、お買い物便や、自然豊かな公園にも近く、
恵まれた立地環境となっておりますよ♪
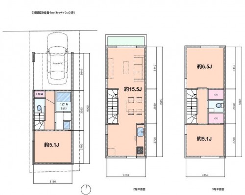
各5帖以上の居室スペースを保ちながら、約15.5帖の使い勝手の良い、
間取が充分に入ります!
もちろん、参考プランの段階なので、お客様のお好みに合わせたレイアウト変更も可能でござい
ますよ!
また、城南エリアを中心に年間約400棟前後施工されており、実績
のしっかりとある有名な施工会社様の手による建築になりますので、ご安心して
お客様のご満足いく、建物が建ち上がって行く過程を楽しむ事が出来ます♪♪
施工会社様の前回施行例のほんの一部を掲載させて頂きますね★
まずは、このポテンシャルの高い土地をご覧頂き、
施工会社様のショールームにて、ご一緒に建物プレゼンテーションを受けに参りましょうね♪
お気軽にお問合せ下さいませ★★★
物件名: 北千束の家
| 価格 | 成約済み |
|---|---|
| 所在地 | 東京都大田区北千束2丁目 |
| 間取 | 3LDK |
| 最寄駅 | 東急大井町線「北千束」駅 (徒歩3分) |
| 最寄駅 | 東急大井町線「北千束」駅 |
|---|---|
| 最寄駅1から徒歩 | 徒歩3分 |
| 最寄駅2 | 東急目黒線「洗足」駅 |
| 最寄駅1から徒歩 | 徒歩4分 |
| 最寄駅3 | 東急目黒線「大岡山」駅 |
| 最寄駅3から徒歩 | 徒歩10分 |
| 物件名 | 北千束の家 |
|---|---|
| 間取り | 3LDK |
| 主要採光面 | 北 |
| 建物構造 | 木造 |
| 建物面積 | 83.46㎡~ |
| 土地面積 | 50.30㎡~ |
| 総区画数 | 2区画 |
| 接道状況 | 北側私道約3.8m |
| 私道負担 | 有り |
| 地目 | 宅地 |
|---|---|
| 建ぺい率 | 60 |
| 容積率 | 200 |
| 都市計画 | 市街化区域 |
| 用途地域 | 第一種中高層住居専用地域 |
| 土地権利 | 所有権 |
| 現況 | 更地 |
| 取引態様 | 仲介 |





















